Monday, 8 October 2018

Certification For Welding Inspector

Certification For Welding Inspector Pictures

Standard For AWS Certification Of Welding Inspectors
1.2 The three levels of certification are Senior Certified Welding Inspector (SCWI), Certified Welding Inspector (CWI), and Certified Associate Welding Inspector (CAWI). 1.3 In the certification process, AWS conducts an exami-nation to determine a person’s general knowledge of welding inspection and related technical areas. No deter- ... Retrieve Doc

Ndt Inspection Jobs - YouTube
Http://www.granitemediagroup.com/lcc1/ ndt inspection jobs. This video clip will with any luck obtain you the response you look for to discover online. The video clip ... View Video

Pictures of Certification For Welding Inspector

Updated May 8, 2017 Pipeline Inspector Certification Program
Construction Inspector Certification, CWB Level 2 and AWS Welding Inspector Certification and NACE Level 2 Coating Inspector Certification. Some certification bodies (CWB, AWS, NACE) keep lists of training/exam prep providers. For further details about training or certification exams, please contact the appropriate certification bodies: www.api.org ... Retrieve Document

Certification For Welding Inspector Images

INSPECTOR QUALIFICATIONS
INSPECTOR QUALIFICATIONS Certification — 49 C FR — Part 396.19 Motor carriers are responsible for ensuring that individual(s) performing an annual inspection Understands the inspection criteria set forth in Part 393 and Appendix G and can identify defective components ... Document Retrieval

Photos of Certification For Welding Inspector

Certified Welding Inspector Program Package
Certified Welding Inspector Program Package . TABLE OF CONTENTS . The following documents are included in this package. make any hotel or flight arrangements until you have received your exam confirmation letter from the Certification Department. WELDING INSPECTOR EXAM APPLICATION. 5. METHOD ... Access This Document

Certification For Welding Inspector Pictures

Certification: Structural Welding Special Inspector Exam ID ...
The Structural Welding Special Inspector is responsible for enforcing the construction details contained in the approved plans and specifications for welding of structural steel elements of a building. The special inspector ... Return Doc

Photos of Certification For Welding Inspector

AWS B5.1:2013 - Specification For The Qualification Of ...
Vii AWS B5.1:2013 Foreword This foreword is not part of AWS B5.1:2013, Specification for the Qualification of Welding Inspectors, but is included for informational purposes only. This is the second edition of this specification. The first edition superseded, in part, AWS QC1, Standard for Certifica- tion of AWS Welding Inspectors. ... Fetch This Document

Certification For Welding Inspector Pictures

Certified Welding Educator Renewal - welding-certification.com
Welding Inspector Renewal Program Information– 11/18/2010 1 . SENIOR CERTIFIED and CERTIFIED WELDING INSPECTOR . RENEWAL PROGRAM INFORMATION . The renewal of your certification is part of the process of maintaining your certification in accordance with AWS QC1, Standard for AWS Certification of Welding Inspectors. ... Fetch Doc

Ndt Technician Salary - YouTube
Http://www.granitemediagroup.com/lcc1/ ndt technician salary. This video clip will ideally obtain you the solution you look for to discover online. The video clip has ... View Video

Plastic welding - Wikipedia
Plastic welding is welding for semi-finished plastic materials, These levels are the Associate Plastics Welding Inspector (APWI), Plastics Welding Inspector (PWI), and Senior Plastics Welding Inspector (SPWI). These three different levels of certification also have different capability ... Read Article

Certification For Welding Inspector Images

CERTIFICATION SCHEME FOR PERSONNEL - CSWIP
2.1 Visual Welding Inspector The examination procedure for the Visual Welding Inspector consists of a practical examination only and candidates must satisfy the examiner in all parts (see 2.2.2a). Details of the examination format and syllabus are given in Appendix 1. 2.2 Welding Inspector ... Return Doc

Photos of Certification For Welding Inspector

SPECIAL INSPECTOR CERTIFICATION INFORMATION BOOKLET - State.nj.us
The requirements for each Special Inspector certification are as follows: 1. Structural Welding Special Inspector shall meet one of the following requirements: (a) 4 years of experience in a skilled trade directly related to Structural Steel or Welding. Or (b) Graduation from an accredited institution of higher learning with an associates ... Fetch Content

Certification For Welding Inspector Pictures

QC1:2016 - Specification For AWS Certification Of Welding ...
The first examinations for the certification of Welding Inspector were conducted in the spring and fall of 1976. More than 97,000 individuals have met the requirements of AWS QC1, worldwide, since the start of the program. ... Read Here

National Board Of Boiler And Pressure Vessel Inspectors ...
The National Board of Boiler and Pressure Vessel Inspectors Ohio Chief Inspector Carl Myers met with chief inspectors from other jurisdictions to discuss creation of a board of inspector representatives from each of the existing jurisdictions. This certification acknowledges to owners ... Read Article

Certification For Welding Inspector Photos

Pipeline Inspector Certification Program - CEPA.com
Pipeline Inspector Certification Program Program Overview Information Level 2/AWS CWI for Welding Inspector Certification and NACE Level 2 for Coating Inspector Certification. The structure of inspector certification is further illustrated in fig. 1 below. ... Access Document

Images of Certification For Welding Inspector

Aws Certification Manual For Welding Inspectors Pdf
CSA W178.2, Certification of welding inspectors. 2.14 The 2.14.2 SSPC Painting Manual, Volume 2, Systems. AWS QC1 - Standard for AWS Certification of Welding Inspectors, AWS QC4 AWS CM - Certification Manual for Welding Inspectors. Guide for Source Inspection and Quality Surveillance. - Certified Welding Inspector Manual. - aws cwi study ... View Document

Pictures of Certification For Welding Inspector

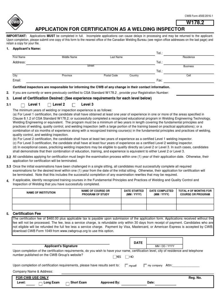
APPLICATION FOR CERTIFICATION AS A WELDING INSPECTOR - CWB Group
(b) For Level 2 certification, the candidate shall have at least two years of experience as a certified Level 1 welding inspector. (c) For Level 3 certification, the candidate shall have at least four years of experience as a certified Level 2 welding inspector. ... Get Document

Images of Certification For Welding Inspector

Guide For AWS Visual Weld Inspection
Inspector Qualifications: states the requirements for all inspectors responsible for acceptance or rejection of material and workmanship shall be qualified. The basis of Inspector qualifications shall be documented. ! Current or previous certification as an AWS Certified Welding Inspector (CWI). ... Get Content Here

Certification For Welding Inspector Pictures

AWS Certification Manual for Welding Inspectors
C M ERTIFICATION ANUAL For Welding Inspectors CERTIFICATION CERTIFICATION CERTIFICATION CERTIFICATION CERTIFICATION Fourth Edition ... View This Document

Certification For Welding Inspector Photos

CWI - Wikipedia
CWI (encoding), a Hungarian character set in the 1980s The Cold War , on the grounds of a second Disambiguation page providing links to topics that could be referred to by the same search term ... Read Article

Certification For Welding Inspector Pictures

Certification For Welding Inspectors 2015 PDF Download
Welding inspector education requirements and , certified welding inspector education requirements and career info; certified welding inspector education requirements and career info senior certification for welding inspectors calls for at . How to become a welding inspector in 5 steps learnorg, many are designed to prepare you ... View Full Source

Certification For Welding Inspector Images

Standard For AWS Certification Of Welding Inspectors
AWS QC1, Standard for Certification of AWS Welding Inspectors, was first published in 1975. Subsequent editions were published in 1988, 1996, and 2006. This document, QC1:2007, Standard for Certification of AWS Welding Inspec-tors, replaces the 2006 edition. The first examinations for the certification of Welding Inspector were conducted in the ... Visit Document

Pictures of Certification For Welding Inspector

COMPARISON OF WELDING INSPECTOR QUALIFICATIONS AND ... - WTIA
Welding Inspector qualification programme to underpin its new three-tier WTIA welding inspector certification programme and replaced its existing WTIA Welding Inspector with WTIA Certified Senior Welding Inspector (CSWI). [Reference, Australasian Welding Journal (AWJ) 1st Quarter 2008]. ... Doc Viewer

Pictures of Certification For Welding Inspector

AWS Certification Manual for Welding Inspectors
For Welding Inspectors CERTIFICATION CERTIFICATION CERTIFICATION Welding Inspector Responsibilities After Welding 157. Certification Manual for Welding Inspectors Welding, ... Read More

No comments:

Post a Comment